1
1
2
2
3
3
1
2
3

Contact Information

Mobile Home Details

  • Price: $249,995
  • Rooms: 2 bed(s), 2 bath(s)
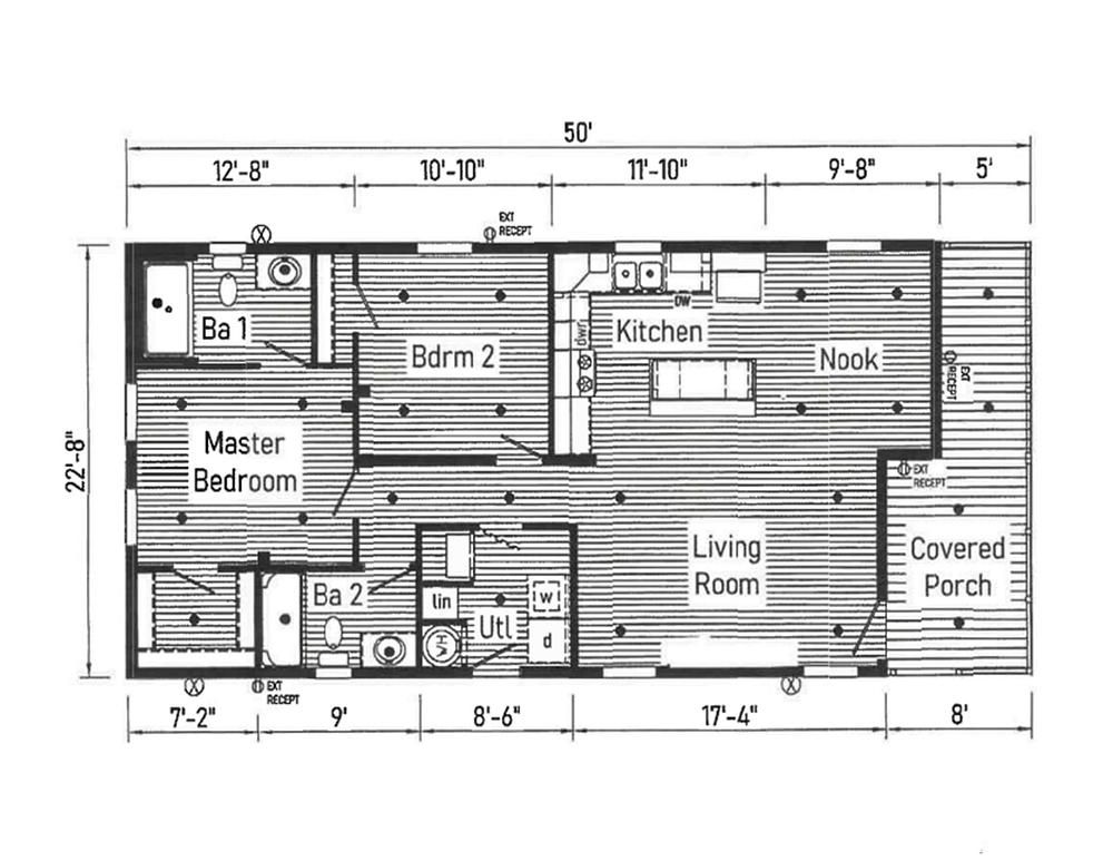
  • Dimension: 22 ft x 50 ft
  • Home Area: 1,100 sqft
  • Condition: New Home
  • Location: Located in a mobile home park
  • Model: 2026 Cavco
  • Community Type: 55 And Over Community
  • Listing ID: 7028065
  • Cedar Springs ID: 160980
  • Posted On: Apr 19, 2026
  • Updated On: Apr 19, 2026

Description

~~ 55+ ACTIVE ADULT COMMUNITY with Year Round Amenities plus Inground Seasonal Pool & Public Gardens ~~
ARRIVING SOON: Modern Ranch Living Meets Premium Craftsmanship!
Be the first to call this brand-new, 1,140 sq. ft. masterpiece home YOURS!!............. Designed for those who crave effortless ranch-style living without compromising on quality, this stunning residence blends contemporary aesthetics with high-end construction.
Interior Highlights:
Modern Open Concept: Experience a seamless flow between the spacious living area and the gourmet kitchen perfect for entertaining or quiet evenings in.
Premium Finishes: Enjoy the upscale look and durability of Luxury Vinyl Plank (LVP) flooring and crisp drywall throughout.
Chef s Kitchen: Fully equipped with a sleek Stainless Steel appliance suite.
Primary Suite Sanctuary: Retreat to your private oasis featuring a spacious layout and an ensuite bath.
Spa-Inspired Bathrooms: Both full bathrooms boast modern walk-in showers, offering a sleek, accessible, and high-end feel.
Exterior & Mechanical Excellence:
Built to Last: Featuring durable vinyl siding, architectural shingles, and thermal insulated windows for maximum energy efficiency.
Climate Control: Stay comfortable year-round with a Propane HVAC system paired with Electric Central AC.
Outdoor Living: Step out onto your private patio and walkway, surrounded by professional landscaping.
Storage & Parking: Includes a dedicated 2-car driveway and a premium powered Kloter Farm shed for your workshop or storage needs.
Peace of Mind:
Move in with confidence! This home includes a 1-Year Manufacturer s Warranty plus a 7-Year Limited Warranty.
Don't wait this "Arriving Soon" gem won't last long!
**Please inquire what other lots are available for this floor plan.......
~ FOR INFORMATION CALL Ingrid Pierce at Sun Communities 860.793.0281 ~

Amenities

  • Storage Shed
  • Cooling : Central Air
Talk to a lender about getting financing for this mobile home.
Get a free, no-obligation quote for insuring this home.
Get a free credit report to find out your eligibility for financing.

Community Information

Cedar Springs

246 Redstone Street, Southington, CT 06489
55+ Community

Other Listings by Ingrid Pierce

Similar Mobile Homes for Sale