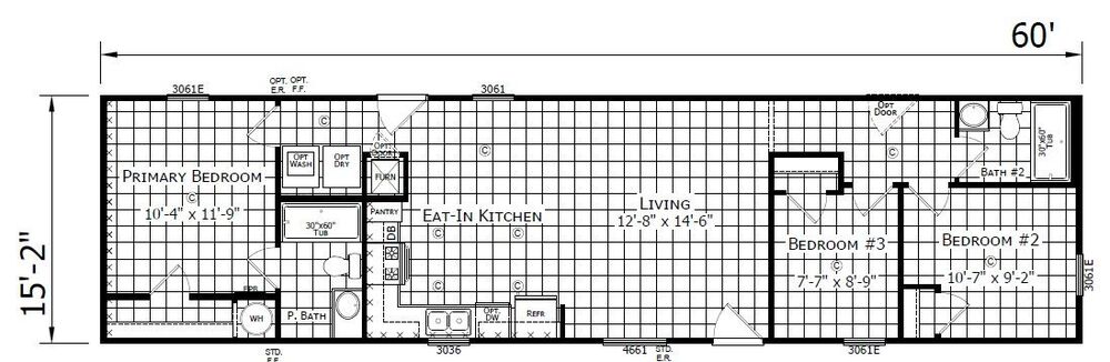
Floor Plan
Floor Plan
Floor Plan

Mobile Home Details

  • Rooms: 2 bed(s), 2 bath(s)
  • Dimension: 16 ft x 60 ft
  • Home Area: 960 sqft
  • Location: Located in a mobile home park
  • Model: 2024 Champion
  • Community Type: All Age Community
  • Listing ID: 6714225
  • Partner ID: 153107
  • Posted On: Sep 1, 2024
  • Updated On: Nov 28, 2024

Description

Welcome to this brand new, single-wide 2 bed/2 bath home that offers the perfect blend of comfort, affordability, and modern living. This home boasts an open floor plan, new appliances, and outdoor space. Don't miss out on the chance to make this charming and affordable residence your own. Schedule a showing today! *All photos and renderings shown are for illustration purposes only. Actual home may vary.

Talk to a lender about getting financing for this mobile home.
Get a free, no-obligation quote for insuring this home.
Get a free credit report to find out your eligibility for financing.

Community Information

Western Village

2000 Grand Ave., West Des Moines, IA 50265
All Age Community
We commit to investing in our residents by providing friendly, inviting neighborhoods so that, together, we can create communities we call home.

Similar Mobile Homes for Sale